Revue technique automobile - Renault Scenic: Restructuration soubassement



BLACKHAWK
Têtes spécifiques pour Système MS
Commander à : BLACKHAWK
centre Eurofret
Rue de Rheinfeld
67100 STRASBOURG
Montage de base complet pour MEGANE :
REN-88 835
Complément pour SCENIC II
REN-88.836
| Nota : Ces matériels sont disponibles seulement sur commande. |
CELETTE
Têtes spécifiques pour Système MZ
Commander à : CELETTE S.A
B.P.9
38026 VIENNE
Montage de base complet pour MEGANE :
896.300
Complément pour SCENIC II
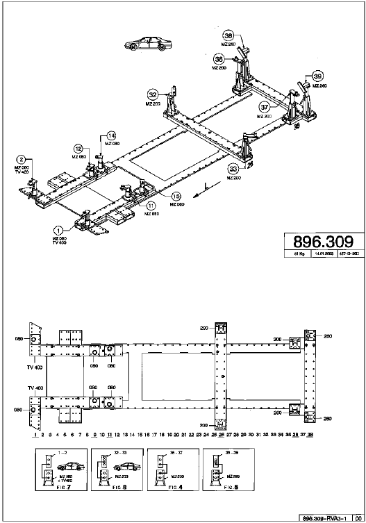
896.309
KIT ANCRAGE POUR BANC DE REPARATION CELETTE
Référence fournisseur : AN.36


KIT ANCRAGE POUR BANC DE REPARATION BLACKHAWK
Référence fournisseur : AEK-186.4


Cotes de soubassement
A et B = référentiel de mise en assiette
...
Outillages
OUTIL DE REPOSE DE PLANCHE DE BORD
Car. 1373
Outil en position sur véhicule
PINCE POUR REMONTAGE D'ARMATURE DE
SIEGE Car. 1679
Outil en position sur véhicule
PROTECTEUR DE PL ...
D'autres materiaux:
Outillage (Cric - Manivelle...)
La présence des outils dépend du véhicule.
Clé de roue 1
Permet le blocage/déblocage des vis
de roue.
Cric 2
Repliez-le correctement avant de le
remettre dans son logement (veillez à
bien repositionner la manivelle 3).
Clé d'enjoliveur 4
Pe ...
"Haut de gamme" :
Autodiagnostic
Le mode autodiagnostic permet de contrôler certaines
fonctions principales.
I - TEST DES HAUT-PARLEURS
Effectuer un appui long sur la touche " EXPERT ".
Les haut-parleurs sont alimentés un à un. L'afficheur
permet de vérifier la correspondance. Comparer ...
Restructuration du soubassement
PIECES NECESSITANT UNE MISE AU MARBRE
Support moteur
Passage de roue avant
Demi-bloc avant
Longeron avant
Support de traverse radiateur
Boîtier de fixation avant de berceau avant
Boîtier de fixation arrière de berceau avant
...